Nursery
Sixpenny Nurseries have a small group of nurseries in Wiltshire. Their lease in Devizes was ending and new premise was a priority. RCC discussed possible optio...
Sixpenny Nurseries have a small group of nurseries in Wiltshire. Their lease in Devizes was ending and new premise was a priority. RCC discussed possible options with them but a number of possible sites raised issues concerning the potential impact of the proposed use on traffic and residential amenity of an area.

Site prior to development

Site prior to development
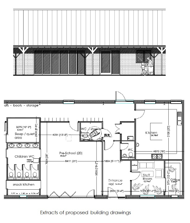
Eventually a farm site on the edge of Devizes, where some previous old agricultural buildings had been converted for commercial uses, was put forward as an option. However the actual building on the site, as seen from the photographs, was dilapidated and a new building was required. With the opportunity to build a bespoke new building with high environmental standards we introduced PKA Architects to the client as they had a wide experience in dealing with such proposals. The resulting building is an attractive and low impact building meeting the exact needs of our clients who were delighted with the design.

However as the site was outside the town’s settlement boundary the planning submission was going to be far from straightforward. RCC therefore submitted a robust planning statement using both national and local planning policies to support it. The resulting application was approved under delegated powers and the business has now been in operation for a number of years.


