Solar projects
RCC has been involved in a wide range of solar projects ranging from small scale private installations, roof and ground mounted systems at farms and large scale...
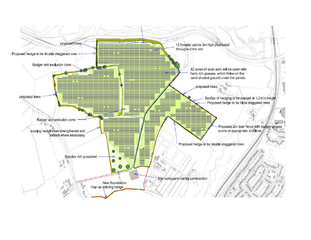
RCC has been involved in a wide range of solar projects ranging from small scale private installations, roof and ground mounted systems at farms and large scale installations up to 20 megawatts. The attached details show extracts of some sites we have been involved in together with some photos of the completed installations.

All the larger scale projects have required a combined team approach to cover all the multiple issues raised by such proposals. RCC have been responsible for bringing in and managing these necessary consultants to ensure our clients receive a fully integrated service. This has included a requirement to present the application submission in a formal Environmental Statement. We have also been involved in public consultation work prior to the submission of the planning applications.

One of those sites approved was a 20 megawatt solar farm on agricultural land in the Wiltshire Green Belt which was probably the toughest challenge we have experienced. Careful and thorough initial assessment work; pre-application discussions with the council and submission of a robust and detailed planning application resulted in a successful outcome with planning approval under delegated powers. An aerial photograph of the site is attached.

