The Keep
This was an exciting development by Gaiger Bros. Ltd. who bought this landmark listed building in Devizes. It was originally part of the wider military barrack...
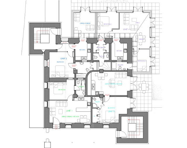
This was an exciting development by Gaiger Bros. Ltd. who bought this landmark listed building in Devizes. It was originally part of the wider military barracks but whilst the remainder of the site had been subject to redevelopment The Keep was retained in separate ownership and used for low key commercial use. RCC became involved at the earliest stages before the client had bought the building. Subsequently we prepared and submitted the planning and listed building applications to convert the building into twelve flats, including a large replacement ground floor extension, with an additional unit created from a new build ‘penthouse’ on the roof. The drawings and photographs provided show extracts of the proposed drawings and photographs during and after the building work.

There were a number of issues raised during the application process including; the principle of the residential use of the building, detailed listed building matters, the design of the new extension and roof top apartment, impact on the existing neighbouring dwellings and potential noise impact on future residents from nearby commercial uses. All these were addressed by RCC in conjunction with PKA Architects. The result was approval of the application under delegated powers.



Rooftop apartment being craned into place
Following a review of the planning permission RCC advised our clients that two of the planning conditions imposed by the Council were considered unreasonable and/or unnecessary. RCC were therefore instructed to challenge these conditions and the council agreed to remove one condition but refused to do this with the second. We were therefore instructed to pursue a planning appeal which we subsequently won. The Planning Inspector agreed the condition was both unnecessary and unreasonable. This case highlights our commitment to achieving successful and optimum outcomes for our clients; recognising that the work of RCC not always concludes with the planning approval.

