Well Cottage, Woodbrorough
Whilst RCC Town Planning Consultancy mostly undertakes work on residential projects ranging from one house to large groups of houses, we also assist clients to...
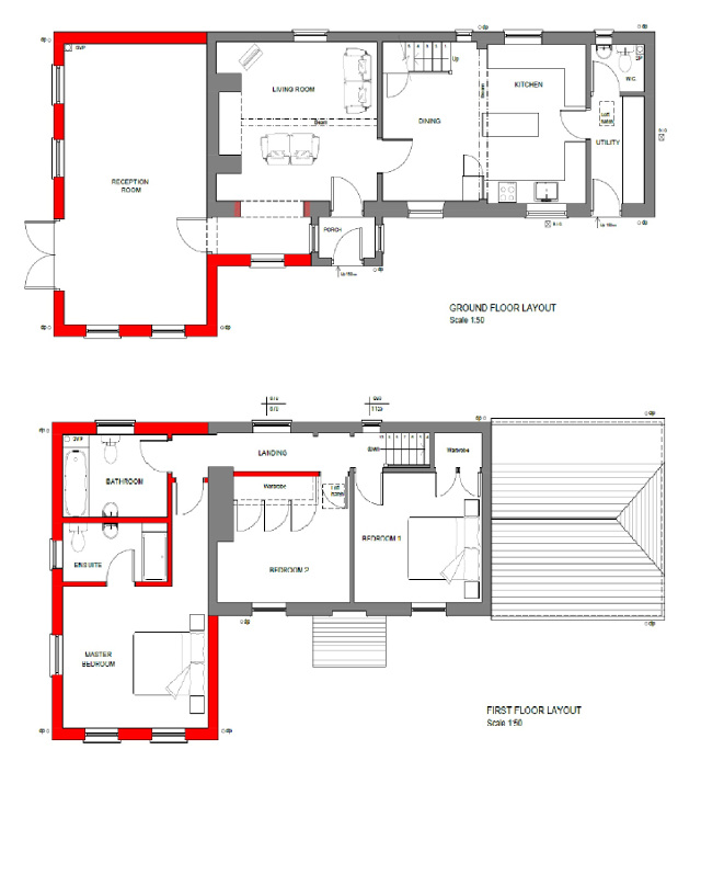
Whilst RCC Town Planning Consultancy mostly undertakes work on residential projects ranging from one house to large groups of houses, we also assist clients to extend their property.

In this instance RCC were approached by clients who were struggling to decide how to extend this modest cottage and provide additional bedroom and living space they needed. Following a meeting on site we worked up some initial proposals that were submitted as a pre-application enquiry to the council. The response from the council was positive and we progressed to formally drawing up the proposal and a full planning application was submitted. The application was successful and approved under delegated powers. Our clients are now in the process of planning the construction work.
House prior to extension

