Following a previous temporary permission for this dwelling RCC are delighted to have now attained permanent permission for the dwelling.
Continue reading…
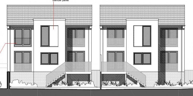
The permission related to an underused area of green space and the two dwellings comfortable fitted on the site with no harmful impact.
Continue reading…
Following a successful outline planning application to establish the principle of an additional workers dwelling on this farm, RCC have now attained reserved matters approval for the dwelling.
Continue reading…
The property had been subject of a fire and as part of the refurbishment proposal it was decided that an extension would assist in the updating of this property.
Continue reading…
These extremely complicated applications came about as a result of an enforcement complaint but we are pleased to say that both certificates have now been granted.
Continue reading…
RCC are delighted to have attained planning permission for the final part of the jigsaw for the vineyard which can now plan for their expansion.
Continue reading…
We are delighted to have attained approval for this proposal even though the client had previously attained negative pre-application advice.
Continue reading…
Full planning permission has been granted to convert a large two storey and single storey barn to residential use in a remote countryside location in Wiltshire.
Continue reading…