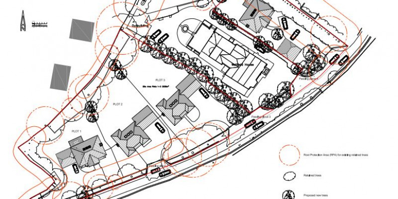
Three dwelling approved in Somerset
RCC are delighted to have attained permission for these three dwellings for our client.
Continue reading…
RCC are delighted to have attained permission for these three dwellings for our client.
Continue reading…
A previous refusal and a long running debate about parking and loss of a grassed area has finally concluded with permission now issued for two new houses.
Continue reading…
RCC were delighted to assist a local dairy farmer attain consent for an external vending machine at their local village shop.
Continue reading…
The dwelling was sited on an underused garage court and the proposal included parking for neighbouring houses.
Continue reading…
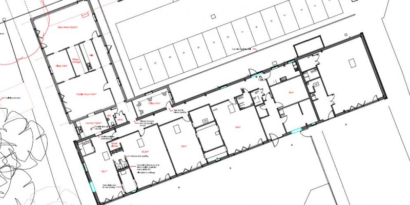
RCC were delighted to attain full planning permission to allow this successful nursery to expand.
Continue reading…
The application for three new bungalows was approved on an underused garage/parking court.
Continue reading…
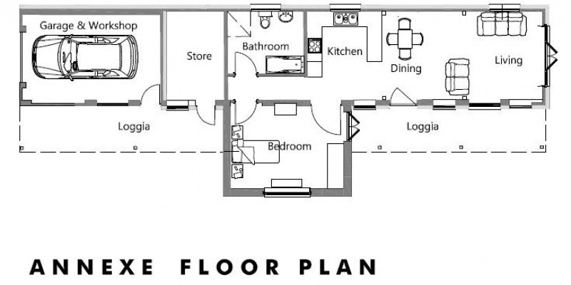
RCC have attained another planning for an annex, this time as a part conversion and part new build.
Continue reading…
RCC are pleased to have attained planning permission and listed building consent for this change of use in the primary retail frontage of the town.
Continue reading…
RCC are delighted that planning permission has finally been granted for this new dwelling on a small farmyard site in open countryside
Continue reading…
Permission has been granted to retain the two new timber shed in the Wiltshire countryside after an enforcement investigation
Continue reading…
The application was to demolish some underused garages and create a terrace of modest dwellings, thus making best use of a brownfield site.
Continue reading…
RCC are extremely pleased to maintain their 100% success rate for agricultural workers dwellings with this latest approval.
Continue reading…
Planning permission has just been granted to allow the beauty use to continue from a cabin in the garden of our client's house.
Continue reading…
RCC are delighted to have received outline planning permission for a new house in the Hampshire countryside.
Continue reading…
RCC are delighted that our planning appeal against the refusal of planning permission by Cotswold District Council has been successful.
Continue reading…
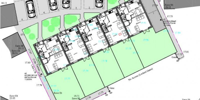
RCC are delighted to have attained planning permission for 4 dwellings in a clients garden.
Continue reading…
RCC are delighted to have attained full planning permission for this site which had been promoted as part of a Neighbourhood Plan.
Continue reading…
The proposed dwelling occupies part of the garden that was no longer required by the host dwelling and provides a prefect small infill plot.
Continue reading…
RCC were delighted to assist the owner of the site after planners had proposed to refuse a previous application to demolish the existing property.
Continue reading…
RCC were delighted in attaining planning permission at the Cotswold DC planning committee last week.
Continue reading…