Approval to demolish the utilitarian buildings and replace them with two new dwelling have been permitted at Wiltshire Planning committee.
Continue reading…
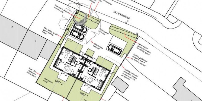
RCC are delighted to have attained permission for a dwelling in part of this rear garden, the second one we have had approved in this street.
Continue reading…
This is the latest success RCC have had in attaining approval that the siting of a timber cabin for ancillary use does not require planning permission.
Continue reading…
RCC are delighted to attained consent to replace a current timber cabin with a much larger one at this agricultural and equestrian unit.
Continue reading…
RCC are delighted that following a previous success with a certificate of lawfulness we have now managed to get the planning condition permanently removed from a Wiltshire property.
Continue reading…
RCC are pleased to have attained planning permission for the tennis court on land outside of the defined domestic curtilage of this countryside property.
Continue reading…
RCC have successfully persuaded West Berkshire planners that the planning agreement can be varied, even after a previous application was refused.
Continue reading…
The application to create an annex in a walled garden was submitted by another agent but RCC were brought in when the planning officer threatened to refuse the planning application.
Continue reading…
We are please to have attained full planning permission for our housing association client for this pair of houses within the normal 8 week period.
Continue reading…
RCC are delighted to have not only attained outline planning permission for a new dwelling for our clients farm in Wiltshire but also the permanent retention of a mobile home.
Continue reading…
After a drawn out process we were delighted that our client has finally gained permission for this new dwelling following protracted negotiations with the planners.
Continue reading…